Van Chặn Lửa MFD EI60
Tiêu chuẩn, quy chuẩn áp dụng : TCVN 5687:2011 ,SỬA ĐỔI 1:2023 QCVN 06:2022/BXD
Thương Hiệu : TDH/VLTC/VN
Xuất xứ : Việt Nam
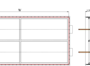
Kích thước ống đốt mẫu : 2200x1000 L200 mm
Tiêu chuẩn thử nghiệm : TCVN 9311-1/2012 , ISO 6944-1/2018
Cấu tạo :
-
Thân van : Tole kẽm dày 1,15mm, Xung quanh bọc thạch cao chống cháy Zeit 9,0mm
-
Cánh Van :Cánh và phần khung cánh làm bằng thạch cao chống cháy 12,7mm
-
Động cơ điều khiển : Belimo 220v/24v hoặc KLB 220v/24v
-
Nguyên lý hoạt động : khi xảy ra cháy hoặc hoả hoạn sẽ có tín hiệu báo cháy truyền về van khi đó motor sẽ được khởi động để đóng cửa van lại khống cho lửa cháy qua
